Мы оказываем всестороннюю помощь в юридическом оформлении брокерской сделки, предварительном техническом обследовании, транспортировке в необходимый регион и перерегистрации судна во всех основных реестрах. Вы можете задать свой вопрос, заполнив форму ниже или связавшись напрямую с нашим менеджером.
ОБЗОР
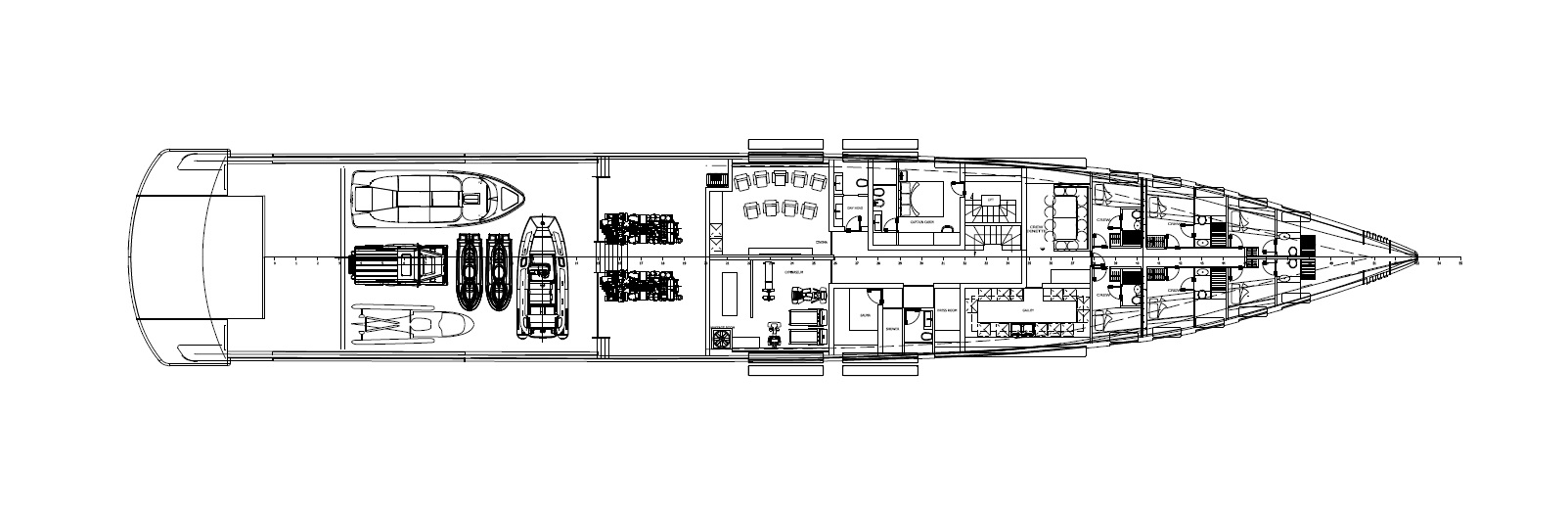
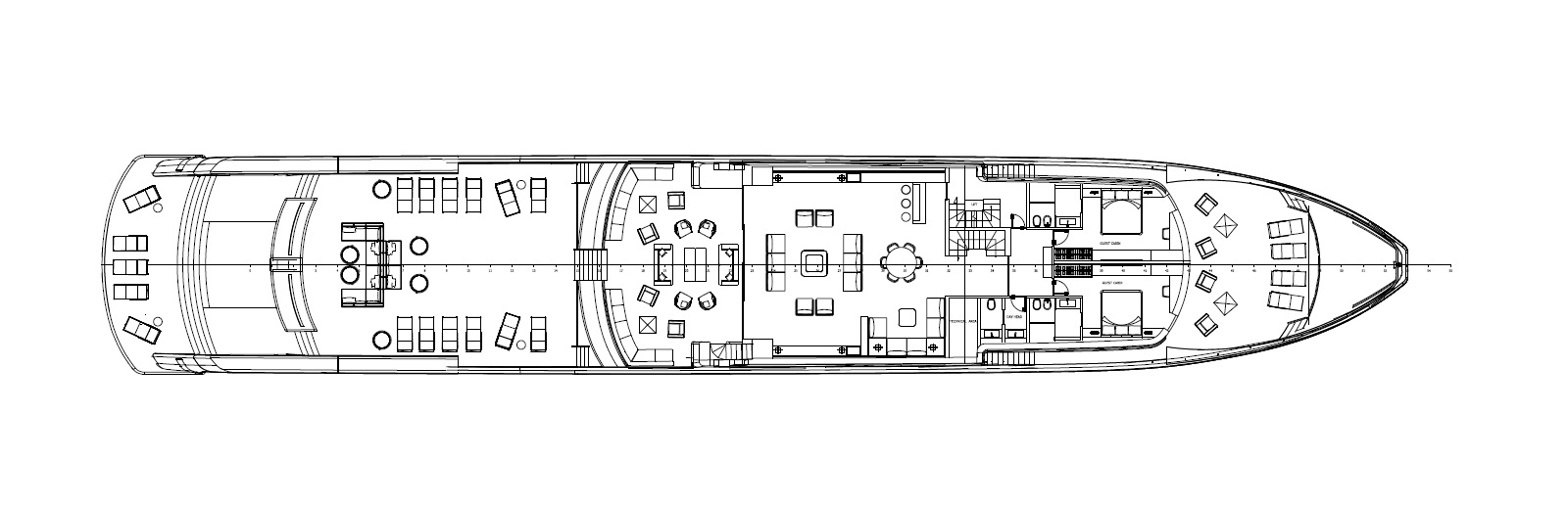
SUY 190 — флагманская «Sport Utility Yacht»: стальной эксплорер с эстетикой классической моторной яхты и харизмой экспедиционного судна. Концепция заточена под активную «жизнь у воды» с множеством тендеров, игрушек и оборудования, при этом сохраняет приватность и комфорт на дальних переходах.
Архитектура и пространства
— Полуприподнятая кормовая палуба (raised aft deck), ниже — ангар в полную ширину; такая схема фактически удваивает полезные площади хранения.
— Логика четырёх ключевых зон: Raised Deck / Hangar / Veranda / Beach Club — гибко трансформируются между стоянкой и переходом.
Материалы и конструкция
Корпус — сталь; надстройка — алюминий. Общая длина 58,0 м, ширина 9,0 м, осадка при полной загрузке 2,20 м, валовая вместимость <1 000 GT
Для кого
Для владельцев, кому нужен крупный «спорт-утилити» с реальной автономностью, продуманной палубной жизнью и возможностью брать на борт внушительный парк тендеров/игрушек — без компромиссов по комфорту и приватности в маринах и в море.
Характеристики
Год: 2026
Местонахождение: Italy
Тип: Motor yacht
Корпус: Aluminium / Steel
Длина: 58.0м
Ширина: 9м
Осадка: 2.2м
Гросс тоннаж: <1000 Гт
Двигатели: 2xCAT C32 — 1418kw
Запас топлива: 60т
Запас воды: 10000 л
Круизная скорость: 14 узлов
Макс. скорость: 16 узлов
Пассажировместимость: 12 чел
Экипаж: 10+1 чел
Офис
MARINEPOINT
125212, Москва, Ленинградское шоссе, 39 стр.6
T: +7 921 957 92 98
T: +34 666 01 15 90
E: info@antonininavi.ru
Осмотр яхты и ходовые испытания проводятся в соответствии с правилами и условиями MYBA. Для получения подробной и актуальной информации об этом судне, пожалуйста, свяжитесь с менеджером.
Или вы можете позвонить нам напрямую по теефону +7 921 957 92 98
or raise your request to info@antonininavi.ru